来源:自然资源和规划局 时间:2025-05-13 字号:【大 中 小】
关于中核汇能河北公司
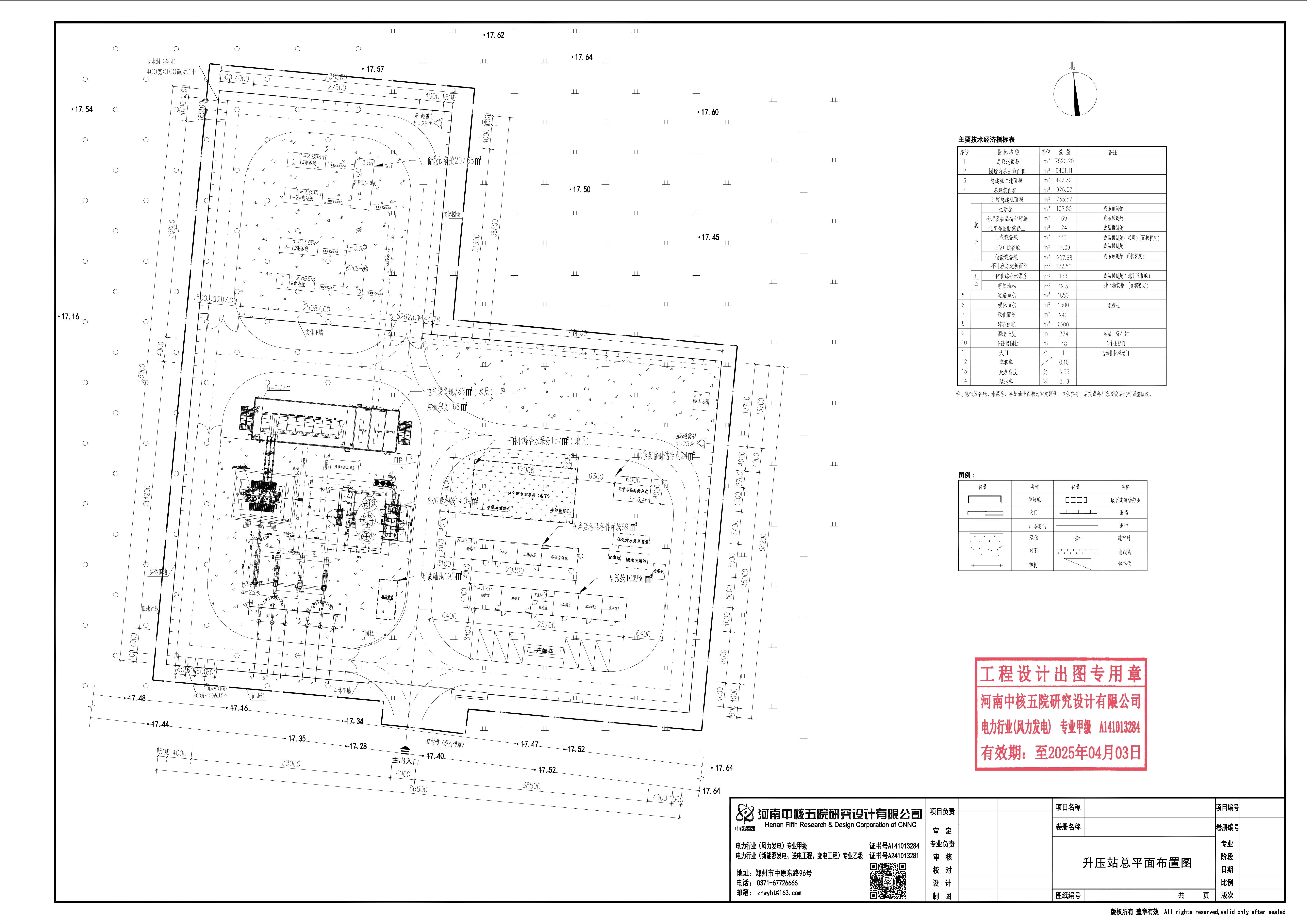
中核威县300兆瓦风力发电项目(50兆瓦)
升压站总平面图公示利害关系人告知书
项目利害关系人:
目前我局已完成对中核威县300兆瓦风力发电项目(50兆瓦)升压站规划总平面图及建筑单体的初审工作,为了广泛征求意见和建议,保障利害关系人合法权益,现对该项目总平面图及单体报批方案事宜进行公示(详见附图)。
建设单位:中核汇能河北新能源有限公司
项目名称:中核威县300兆瓦风力发电项目(50兆瓦)
项目位置:威县常庄镇北仓庄村村西
建设规模:926.07平方米(计容面积753.57平方米)
公示时间:2025年5月13日—2025年5月22日
公示地点:
1.威县人民政府信息公开平台自然资源和规划局信息公开专版(/xxgkinfo/bmzb.jsp?orgid=397 )
2.威县自然资源和规划局公示栏
依据《中华人民共和国城乡规划法》、《中华人民共和国行政许可法》,利害关系人可以自公示告知书告知之日起10日内,持有效身份证明向本机关陈述你对该规划事项的书面意见,并可以提出听证申请。逾期未提出的,视为放弃上述权利。
反馈地址:威县中华大街自然资源和规划局建设工程规划股
反馈电话:0319-6156902
2025年5月13日

扫一扫分享到手机端